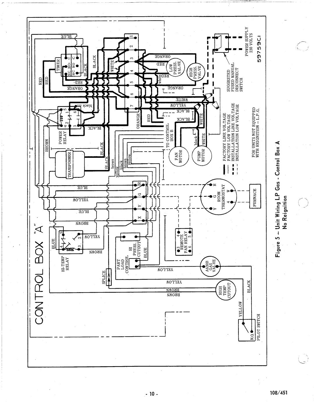
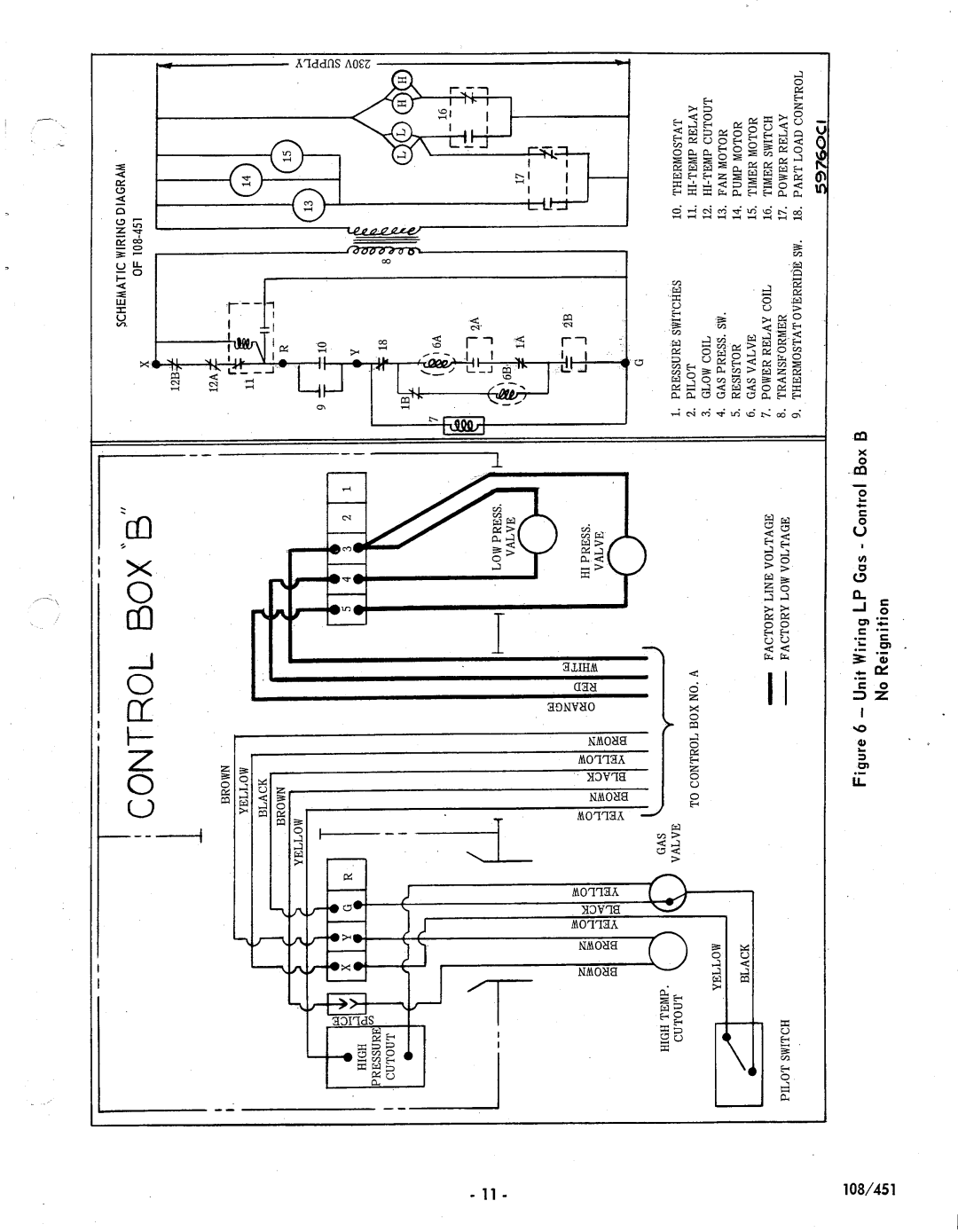
Page 9
Image 9
Bryant 451P manual

451P specifications

The Bryant 451P is a powerful and reliable heat pump designed for residential heating and cooling applications. This unit stands out for its efficient performance, advanced technology, and user-friendly features that provide homeowners with optimal comfort year-round.

One of the hallmark features of the Bryant 451P is its exceptional energy efficiency. With a SEER (Seasonal Energy Efficiency Ratio) rating of up to 16, this heat pump ensures that minimal energy is wasted during operation, leading to reduced utility costs and a smaller environmental footprint. The HSPF (Heating Season Performance Factor) rating also demonstrates its ability to deliver efficient heating during colder months.

The Bryant 451P utilizes a variable-speed compressor that allows for precise temperature control. This technology adjusts the cooling output based on the specific requirements of the home, ensuring that the system operates quietly and efficiently. The ability to work at different speeds means less wear and tear on the system, ultimately extending its lifespan.

Moreover, the Bryant 451P features a durable cabinet construction and a weather-resistant design. This ensures that the unit can withstand harsh outdoor conditions, delivering reliable performance even in extreme temperatures. The coated coil provides resistance against corrosion, further boosting the longevity and performance of the system.

For added convenience, the Bryant 451P includes a smart thermostat option that enables remote control and scheduling from a smartphone. Homeowners can adjust their home’s temperature from anywhere, allowing for enhanced flexibility and energy savings.

Another notable characteristic of the Bryant 451P is its quiet operation. The unit is designed with sound-dampening features that significantly reduce noise levels, ensuring that it operates unobtrusively in the background while maintaining indoor comfort.

In summary, the Bryant 451P is a well-rounded heat pump that offers outstanding energy efficiency, innovative technology, durability, and quiet operation. With its remarkable performance and advanced features, it is an excellent choice for homeowners looking to enhance their indoor climate control while keeping energy costs in check. This unit exemplifies Bryant's commitment to quality and efficiency, making it a trusted solution for heating and cooling needs.