Page 14
Image 14
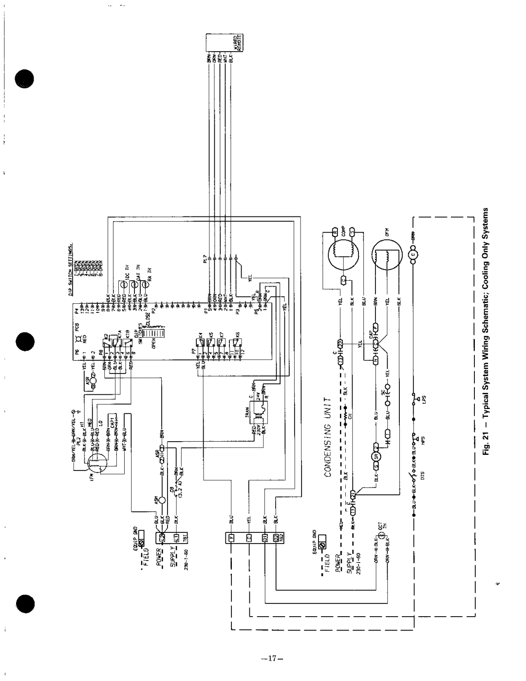
Bryant 619C manual

619C specifications

The Bryant 619C is a high-efficiency air conditioning and heating unit that stands out for its advanced technologies and exceptional performance. Designed for residential applications, this model is engineered to provide reliable comfort while maintaining energy efficiency throughout the year.

One of the standout features of the Bryant 619C is its SEER (Seasonal Energy Efficiency Ratio) rating, which is notably high. This rating ensures that homeowners enjoy lower energy bills while contributing to a more sustainable environment. The unit’s energy efficiency translates to less electricity usage and reduced greenhouse gas emissions, making it an environmentally friendly choice.

The Bryant 619C employs a two-stage cooling system that helps maintain consistent indoor temperatures. This dual-stage operation allows the unit to operate at lower capacity on milder days, thus saving energy while still keeping interiors comfortable. The enhanced control over temperature not only maximizes efficiency but also promotes a quieter operation, as the system can run at a lower speed during periods of mild weather.

In terms of durability, the Bryant 619C features a robust construction, with innovative materials designed to withstand the rigors of various weather conditions. The unit’s microchannel coil design is noteworthy, as it provides improved heat transfer efficiency and enhances the overall performance of the system.

Additionally, the 619C is equipped with advanced technology such as the Evolution Control System, which allows for seamless integration with Bryant’s smart thermostats. This system enables homeowners to monitor and control their HVAC settings remotely, providing convenience and enhancing energy savings. The unit also incorporates a variable-speed blower that optimizes airflow for increased comfort.

Noise reduction is another key characteristic of the Bryant 619C. Engineered with a sound-dampening design, this model operates quietly, contributing to a peaceful home environment. The low sound levels make it an ideal choice for bedrooms or other noise-sensitive areas.

Overall, the Bryant 619C is a top-tier HVAC solution, offering a blend of efficiency, comfort, and technological innovation. Its ability to provide reliable heating and cooling while being environmentally responsible makes it a preferred choice for homeowners seeking high-quality climate control solutions. With its advanced features and durable design, the Bryant 619C is undoubtedly a wise investment for ensuring year-round comfort.