INSTALLATION

Wall drilling and bracket fixing

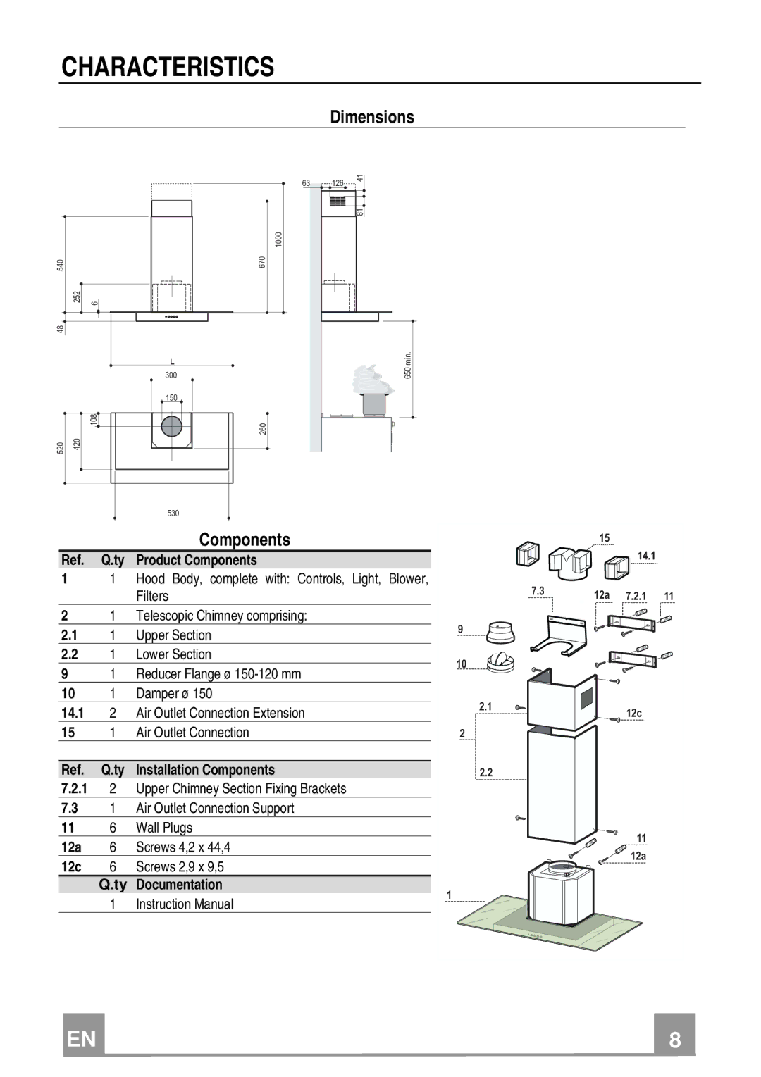
7.2.1

11

116 116

12a

 

650 min.

306 X 1÷2

Wall marking:

Draw a vertical line on the supporting wall up to the ceiling, or as high as practical, at the centre of the area in which the hood will be installed.

Draw a horizontal line at 650 mm above the hob.

Place bracket 7.2.1 on the wall as shown about 1-2 mm from the ceiling or upper limit align- ing the centre (notch) with the vertical reference line.

Mark the wall at the centres of the holes in the bracket.

Place bracket 7.2.1 on the wall as shown at X mm below the first bracket (X = height of the upper

chimney section supplied), aligning the centre (notch) with the vertical line.

Mark the wall at the centres of the holes in the bracket.

Mark a reference point as indicated at 116 mm from the vertical reference line and 306 mm above the horizontal reference line.

Repeat this operation on the other side.

Drill ø 8 mm holes at all the centre points marked.

Insert the wall plugs 11 in the holes.

Fix the lower bracket 7.2.1 using the 12a screws (4,2 x 44,4) supplied.

Fix the upper bracket 7.2.1 and the air outlet connection support 7.3 together using the 2 screws 12a (4,2 x 44,4) supplied.

Insert the two screws 12a (4,2 x 44,4) supplied in the hood body fixing holes, leaving a gap of 5-6 mm between the wall and the head of the screw.

EN

 

9

 

9

Page 9
Image 9
Franke Consumer Products FGL 9104 XS ECS, FGL 6104 XS ECS manual Installation, Wall drilling and bracket fixing

FGL 9104 XS ECS, FGL 6104 XS ECS specifications

Franke Consumer Products, a leading name in the realm of kitchen and bath solutions, has designed a remarkable lineup of kitchen sink products, notably the FGL 6104 XS ECS and FGL 9104 XS ECS models. These sinks reflect the brand's commitment to quality, innovation, and functional design, making them integral elements in modern kitchens.

The FGL 6104 XS ECS is distinguished by its sleek and compact design, making it an ideal choice for smaller kitchens or apartments where space is at a premium. This model features a single large bowl, providing ample space for various kitchen tasks, from food preparation to washing large cookware. Crafted from high-quality stainless steel, this sink offers exceptional durability and resistance to rust and stains. The brushed finish lends a contemporary touch while also minimizing the visibility of fingerprints and water spots.

On the other hand, the FGL 9104 XS ECS offers a slightly larger configuration, designed to accommodate more extensive kitchen operations without sacrificing style. Like the FGL 6104, it is also constructed from top-grade stainless steel, ensuring both longevity and a sophisticated aesthetic. Its practical dual-bowl design is an attractive feature, facilitating multitasking and increased efficiency while handling pots, pans, and dishes.

Both models are equipped with advanced sound insulation technology, reducing noise during usage, which is especially beneficial in busy household environments. Additionally, they incorporate Franke’s innovative Easy-Clean edges that make maintenance a breeze. The smooth surfaces prevent dirt and grime from accumulating, promoting hygiene and ease of cleaning.

Another standout feature in both models is the innovative ECS (Easy Clean System). This technology involves unique sink edges designed to direct water flow and reduce splashing, making both washing and rinsing processes cleaner and less cumbersome.

Choosing Franke’s FGL series means investing in sinks that combine functionality with aesthetic appeal. They are suitable for various design themes, from contemporary to traditional. Moreover, their commitment to eco-friendly manufacturing processes reflects the brand's dedication to sustainability.

In summary, the Franke Consumer Products FGL 6104 XS ECS and FGL 9104 XS ECS sink models epitomize modern kitchen design, offering practicality, durability, and style. Whether you are a passionate cook or simply looking to enhance your kitchen's allure, these sinks are designed to meet the needs of today’s homeowners, making them worthwhile additions to any culinary space.